Case Study:
Townhouse Repurpose
KLPOA was approached by a client considering the purchase of a historic townhouse in a prime Washington, DC location. The objective was to explore how the property could be reimagined to serve as both a restorative home and a private therapy space.
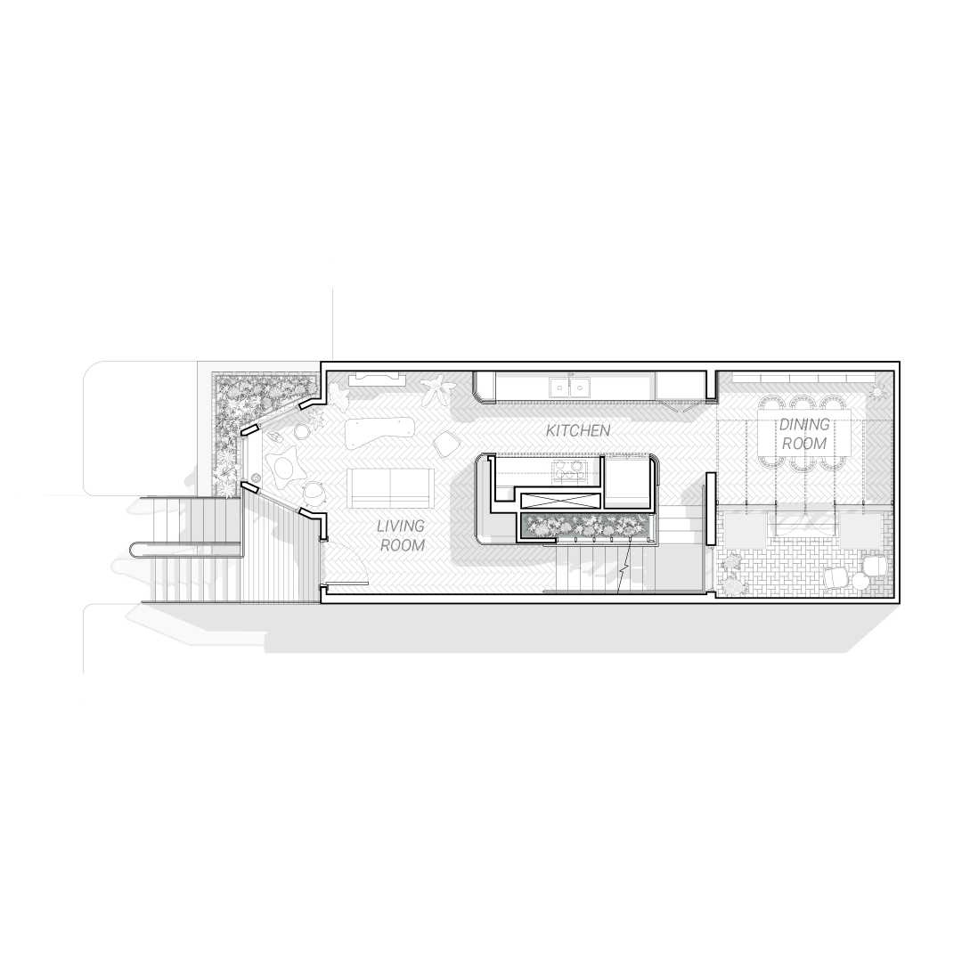
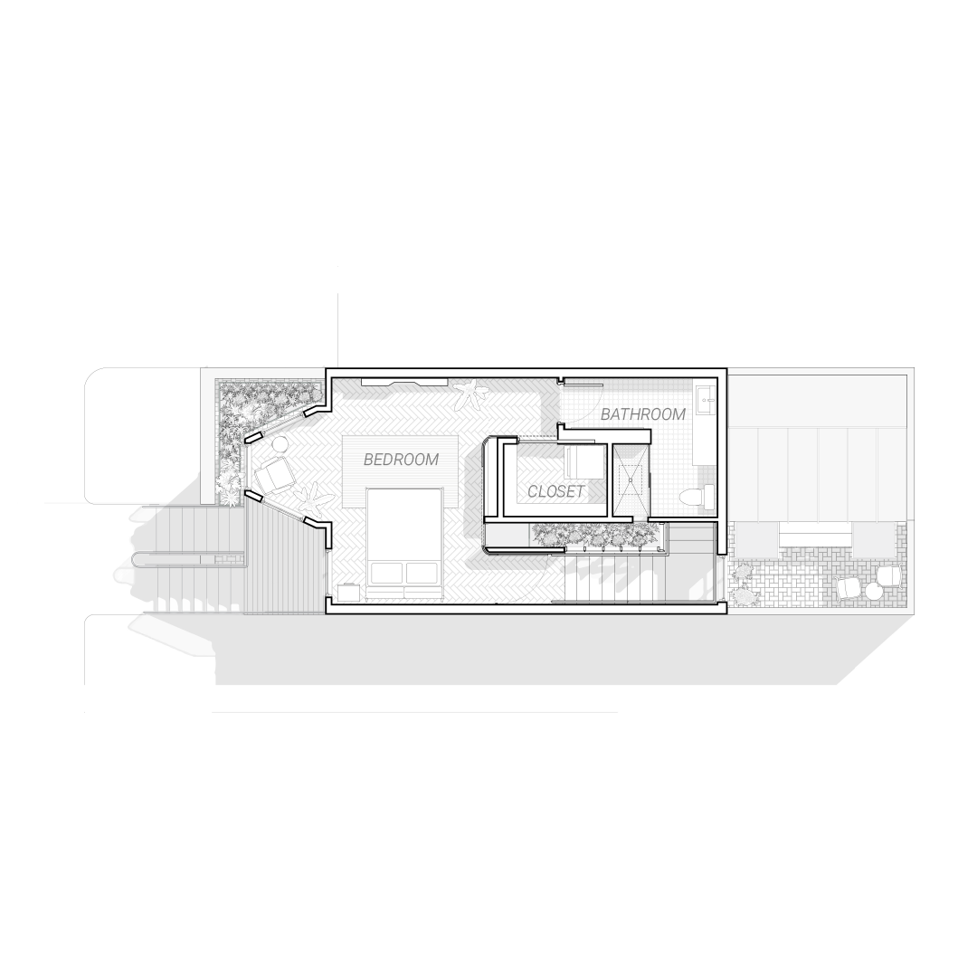
With three floors to work with, the design adopted a classic live/work approach: the lower level accommodates therapy rooms for the client’s counseling practice, while the upper floors create a serene personal retreat filled with warm wood tones, abundant plants, and soft natural light. To address the age-old challenge of bringing light and air into the heart of the townhouse, KLPOA introduced a unique feature, the “light funnel” which draws both daylight and fresh air through the center of the home while discreetly integrating built-in storage. The result is a beautifully cohesive environment that supports both professional and personal wellbeing.
Existing Conditions
The townhome, while well situated, clearly classified as a “fixer-upper” with lots of deferred maintenance making it hard to imagine its full potential.
Ensuring Sunlight and Fresh Air Throughout
A key goal for this repurposing was to create a space filled throughout with soft and ever-changing daylight and fresh air. To solve this problem, we designed a three story “light-funnel” which not only provides light and ventilation throughout the residence, but also creates smart storage solutions and helps produce a well organized flow to the floorplan.
The central funnel brings light from the rooftop monitor deep into the space, allowing even the interior staircase to be flooded with light. On the reverse side, storage areas provide an elegant solution to everyday clutter.
Despite being located on the basement level, the counseling room has soft, gentle natural light and a view to a winter garden.
The central light funnel pulls fresh air and natural light from the exterior and brings it deep into the building, bringing wellness-benefits throughout.
Design Process
1) Typical Townhome
A typical townhome suffers from poor lighting and ventilation conditions. With buildings on both sides, natural light can only enter from the front and the back of the building, leading to darkness in the center of the space.
2) Adding a Light Funnel
By dropping a light funnel from the roof to the basement, we create a small courtyard that provides natural light and ventilation into the center of the floorplan, significantly improving the circadian lighting of the space.
A modern home needs a modern storage solution. On each floor, the funnel provides a series of hidden and elegant storage spaces that serve the specific needs of that room.
